 |
|
|
| Autor |
Wiadomo¶æ |
 |
Dziadborowy
|
Wys³any: 2020-01-08, 20:52 mini lakiernia - pro¶ba o radê
|
0
|
|
|
Posty: 1
|
Witam,
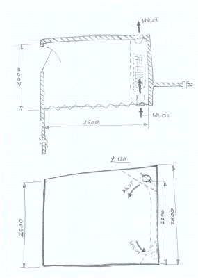
Posiadam gara¿, z którego wydzieli³em czê¶æ na warsztacik i z tej czê¶ci chcê wydzieliæ jeszcze mniejsz± cze¶æ na mini lakierniê (2x2,6 m) na potrzeby hobbystycznego lakierowania. ¦cianê odgradzaj±c± mini lakierniê od reszty warsztatu zamierzam zrobiæ z grubej plandeki przesuwanej po napiêtej lince stalowej, a nad ni± do sufitu zamocowaæ na sta³e p³ytê OSB, przez któr± wykonaæ wlot powietrza z ogrzewanej czê¶ci warsztatu (zawsze minimum 15 oC) i wpuszczaæ przez filtr do lakierni. Na dole, w rogu miêdzy pod³og± i ¶cian± umie¶ciæ filtr i wylot przez kominek w ¶cianie na zewn±trz. Wszystko na za³±czonych szkicach i fotce. Takie rozwi±zanie jest konieczne gdy¿ lakierowaæ bêdê sporadycznie, a nie chcê na sta³e ograniczaæ powierzchni warsztatu.
Do rzeczy. proszê o radê jaki wentylator powinienem zastosowaæ. U¿ywaj±c "szukajki" wiem ju¿, ¿e w celu stworzenia w³a¶ciwych warunków do lakierowania muszê stworzyæ nadci¶nienie.
mini-lakiernia-3.jpg pomieszczenie w "na ¿ywo" |
 |
| Plik ¶ci±gniêto 75 raz(y) 743.8 KB |
mini-lakiernia-2.jpg widok 3D |
 |
| Plik ¶ci±gniêto 37 raz(y) 162.99 KB |
mini-lakiernia-1.jpg rzuty z góry i z boku |
 |
| Plik ¶ci±gniêto 38 raz(y) 154.46 KB |
|
|
|
|
|
 |
|
andrzej_biebrza
|
Wys³any: 2021-01-27, 15:15
|
0
|
|
|
Posty: 1
|
Co do wentylatora raczej Ci nie pomogê, ale pamiêtaj o zastosowaniu dobrych filtrów. Po pierwsze, sprawd¼ rozwi±zania od Columbus. Dwa - nawet w malutkiej lakierni dobrze jest wykorzystaæ maty Paint Stop - szczególnie do szafek sterowniczych, czy do zabezpieczenia urz±dzeñ elektronicznych, czy te¿ w innych miejscach, gdzie mo¿e siê sprawdziæ. Zwyk³a w³óknina mo¿e nie wystarczyæ.
Sprawd¼ tutaj. https://filterm.pl/filtry-do-lakierni/paint-stop |
|
|
|
|
 |
|
Czere¶niak
|
Wys³any: 2021-01-27, 20:45
|
0
|
|
|
Pomóg³: 14 razy Posty: 200
|
| Na reklame sklepu to chyba nie ten dzia³ panie sprzedawca ... |
|
|
|
|
Nie mo¿esz pisaæ nowych tematów Nie mo¿esz odpowiadaæ w tematach Nie mo¿esz zmieniaæ swoich postów Nie mo¿esz usuwaæ swoich postów Nie mo¿esz g³osowaæ w ankietach Nie mo¿esz za³±czaæ plików na tym forum Mo¿esz ¶ci±gaæ za³±czniki na tym forum
|
|
|