| Autor |
Wiadomo¶æ |
 |
skot84
|
Wys³any: 2009-04-18, 21:34 Adaptacja pomieszczenia-prosze o porade
|
+1
|
|
|
Posty: 22 Sk±d: Krotoszyn
|
Posiadam w budynku gospodarczym z piêtrem pomieszczenie do adaptacji na "komore lakiernicz±" Pomieszczenie ma wymiary 5,5m x 5,5 m czy takie pomieszczenie bêdziê wystarczaj±ce czy lepiej daæ sobie spokój?
prosze o porade. |
|
|
|
|
 |
baqo
|
Wys³any: 2009-04-18, 21:52
|
0
|
|
|
Pomóg³: 20 razy Posty: 1553 Sk±d: ko³obrzeg
|
| skot84 napisa³/a: | | Pomieszczenie ma wymiary 5,5m x 5,5 m | trochê krótko. ale gdy siê nie ma co siê lubi to siê lubi co siê ma. co chcesz konkretnie w tym pomieszczeniu zrobiæ.bo kabine wstawiæ to krótko. minimum sze¶æ metrów. |
|
|
|
|
 |
|
No-limit
|
Wys³any: 2009-04-18, 22:02
|
0
|
|
|

Pomóg³: 34 razy Posty: 1179
|
| baqo napisa³/a: | | skot84 napisa³/a: | | Pomieszczenie ma wymiary 5,5m x 5,5 m | trochê krótko. ale gdy siê nie ma co siê lubi to siê lubi co siê ma. co chcesz konkretnie w tym pomieszczeniu zrobiæ.bo kabine wstawiæ to krótko. minimum sze¶æ metrów. |
Chyba ¿e przybudówka na wentylator,sprê¿arkê i piec. |
|
|
|
|
 |
|
kamilbusko
|
Wys³any: 2009-04-18, 22:41
|
0
|
|
|
Posty: 349
|
| te¿ mia³em taki problem tylko pomieszczenie nam trochê wiêksze przerabiam w³a¶nie pomieszczenie gospodarcze 7 na 7 metrów obok drugie mniejsze na przygotowywanie pojedynczych elementów 6 na 3.5 metra i jescze jedno które muszê wyremontowaæ i bêdzie tam biuro mo¿e jakie¶ pomieszczenie socjalne i kot³ownia. narazie chce lakierowaæ w tym pomieszczeniu 7 na 7 a jak zarejestruje firmê wezmê dofinansowanie i kupiê jak±¶ u¿ywana kabinke |
|
|
|
|
 |
skot84
|
Wys³any: 2009-04-19, 00:28
|
0
|
|
|
Posty: 22 Sk±d: Krotoszyn
|
mam budynek gospodarczy kiedy¶ by³a to obora hehe seroko¶æ 5,5 m d³ugo¶æ ok 16m ale co ok 5,5 m stoj± podpory stropu których nie mogê ruszyæ :(
Chcia³em to podzieliæ na 3 czê¶ci po 5,5 m pierwsza czê¶æ taka jak by strefa przygotowawcza. Dróg± zrobiæ do lakierowania posadzka to wylewka z betonu, na ¶ciany p³ytki lub jaka¶ fajna farba (kto¶ na forum proponowa³ farbe od malowania pasów na drogach ) nawiew z góry i wyci±g z do³u. W trzecim pomieszczeniu planowa³em postawiæ piec, wentylatory, sprê¿arkê, i kilka rega³ów na materia³y.
Wiem ¿e najepiej 7m ale to wtedy bym musia³ budynek stawiaæ a to s± wiêksze koszty ni¿ adapacja tego co mam. |
_________________ http://kotbazyl.cba.pl |
|
|
|
|
 |
dooku
|
Wys³any: 2009-04-19, 14:17
|
0
|
|
|
Pomóg³: 1 raz Posty: 117 Sk±d: £ód¼
|
ja mam 5,5x5,5 m .
zdecydowanie za male .jak lakieruje male autko to spoko bo wchodza nawet ze 2 kobylki i jakis wieszak.ale jak wjechalem mondeo kombi i lakierowalem na otwartych drzwiach to juz zderzak musialem na drugi dzien bo bym sie w auto powklejal:/ |
|
|
|
|
 |
|
michalLbn
|
Wys³any: 2009-04-20, 12:43
|
0
|
|
|
Pomóg³: 2 razy Posty: 184
|
| dooku napisa³/a: | ja mam 5,5x5,5 m .
zdecydowanie za male .jak lakieruje male autko to spoko bo wchodza nawet ze 2 kobylki i jakis wieszak.ale jak wjechalem mondeo kombi i lakierowalem na otwartych drzwiach to juz zderzak musialem na drugi dzien bo bym sie w auto powklejal:/ |
Ja jeszcze nigdy nie malowa³em nic na otwartych drzwiach. Po co tak robiæ? Jak maluje ca³y próg to zdejmuje drzwi. |
|
|
|
|
 |
dooku
|
Wys³any: 2009-04-25, 23:01
|
0
|
|
|
Pomóg³: 1 raz Posty: 117 Sk±d: £ód¼
|
a jesli jest to wstawiona rererturka blotnika to masz slupek do lakieru, a jesli jest to np.OPEL i drzwi sa montowane na wbijane bolce to powodzenia przy zdejmowaniu |
|
|
|
|
 |
|
ZIEMBA
|
Wys³any: 2009-04-26, 17:41
|
0
|
|
|
Pomóg³: 5 razy Posty: 380
|
| dooku napisa³/a: | | .OPEL i drzwi sa montowane na wbijane bolce to powodzenia przy zdejmowaniu |
Oj tak, zdejmowa³em ostatnio wszystkie drzwi w mojej omedze, przesrana robota |
|
|
|
|
 |
skot84
|
Wys³any: 2009-04-26, 18:23
|
0
|
|
|
Posty: 22 Sk±d: Krotoszyn
|
oj jak ma siê w±sko to trzeba demontowaæ dzwi.
Zaczo³em prace nad pomieszczeniem, zasanawiam siê nad wyci±giem, jak radzicie na ca³ej szeroko¶ci pommieszczenia czy wystarczy po bokach?? w zdlu¿?? |
|
|
|
|
 |
|
Greg
|
Wys³any: 2009-05-15, 14:54
|
0
|
|
|
Pomóg³: 6 razy Posty: 149
|
Dopinam sie do pytania skot84'a . JAk najlepiej usadowiæ wyci±æ z takiego pomieszczenia. Musze co¶ z tym zrobiæ bo gdyby nie te g³upie ma³e py³ki elementy wychodzi³y by do klienta bez polerki a tak trzeba zawsze siê pier*** z polerk± . |
|
|
|
|
 |
dooku
|
Wys³any: 2009-05-17, 19:58
|
0
|
|
|
Pomóg³: 1 raz Posty: 117 Sk±d: £ód¼
|
ja mam na koncu i jest kicha. wyciag jest potezny na koncowej scianie po srodku,i pojawia sie problem
jak wlaczam wyciag to ilosc powietrza musia sie zgadzac w pomieszczeniu wiec kazda dziura zaciaga syf np. z pomieszczenia do szlifu. tzreba pomyslec o doplywie czystego powietrza. ja bede probowal we wrotach zrobic zamykane filty ,na czas lakieru otwierac a jak nie dzila wycig to zamykac (chodzi mi o zime).powodzenia. |
|
|
|
|
 |
banshee
|
Wys³any: 2009-05-18, 07:26
|
0
|
|
|
staram siê jak mogê
Pomóg³: 2 razy Posty: 71 Sk±d: Bydgoszcz
|
Nadmuch w kabinie dzia³a zupe³nie odwrotnie z tego co piszecie (z tego co mi wiadomo )
Otó¿ powietrze do komory jest wt³aczane przez filtry wstêpne i dok³adne, a wylatuje pod³og±. Je¿eli masz dziury w ¶cianach to nic siê nie dzieje, ale je¿eli bêdzie odwrotnie - jak piszesz - czyli wyci±gasz powietrze z pomieszczenia to syfy zawsze wlec±.
Jednym s³owem w kabinie musi byæ nadci¶nienie. |
|
|
|
|
 |
mebArth
|
Wys³any: 2009-05-18, 11:28
|
0
|
|
|
Pomóg³: 42 razy Posty: 1794 Sk±d: Kraków
|
| Cytat: | | Jednym s³owem w kabinie musi byæ nadci¶nienie. |
Tak..zgadza sie ale delikatny wyciag tez sie przyda. Robi³em na takiej kabinie kiedys ze drzwi musia³em na zasuwe zamykaæ ale jak malowa³em to mog³em bez maski robic - tak ci±g³o. I to nie by³o SAICO napewno. |
_________________ Bart
 |
|
|
|
|
 |
skot84
|
Wys³any: 2009-05-18, 20:47
|
0
|
|
|
Posty: 22 Sk±d: Krotoszyn
|
Co s±dzicie o takim rozplanowaniu nawieu i wyci±gu w lakierni. Prosze o uwagi
adaptacja pomieszczenia.JPG
|
 |
| Plik ¶ci±gniêto 3146 raz(y) 27.74 KB |
|
|
|
|
|
 |
|
Greg
|
Wys³any: 2009-05-18, 21:06
|
0
|
|
|
Pomóg³: 6 razy Posty: 149
|
Skot84- ja dok³adnie tak samo planuje zrobiæ u siebie i my¶le ze to bedzie spe³niaæ swoje zadanie tylko bêdzie do tego nadmuchu skombinowaæ nielada ma³± turbine a z tym ja nie bêde mia³ ca³e szczêscie problemu bo mi wujek takie co¶ skombinuje z rozbiórki hali - klimatyzacji bodaj¿e . ALe jestem w³a¶nie ciekaw czy takie rozwi±zanie bêdzie ok. Widzia³em gdzieniegdzie takie w³a¶nie co¶ i ludzie potrafili nie¼le w tym lakierowac |
|
|
|
|
 |
dooku
|
Wys³any: 2009-05-19, 16:35
|
0
|
|
|
Pomóg³: 1 raz Posty: 117 Sk±d: £ód¼
|
czyli jak? nadmuch powietrza ze sufitu jest lepszy od wyciagu w podlodze?
a czy to powietrze nie bedzie za bardzo wirowac? |
|
|
|
|
 |
|
Greg
|
Wys³any: 2009-05-19, 18:22
|
+1
|
|
|
Pomóg³: 6 razy Posty: 149
|
Nie jest powiedziane ¿e nadmuch powietrza ze sufitu jest lepszy ni¿ wyci±g w pod³odze. Oryginalne lakiernie maj± w³a¶nie i nadmuch i wyci±g. Je¶li dasz sam wyci±g ze szczelnego pomieszczenia- to bêdzie siê robi³a jakby pró¿nia (oczywi¶cie siê nie zrobi ) ale co¶ w tym stylu i zapewniam Cie ¿e wyci±g praktycznie bêdzie niezauwa¿alny - brak ¶wie¿ego powietrza co by te opary zast±pi³o wiêc nie bêdzie takiego ci±gu. Sam ju¿ to przerabia³em i musia³em zastosowaæ dolot ¶wie¿ego powietrza do mojej pseudo komory Wtedy wymiana powietrza jest zdecydowanie lepsza- jest ci±g wiatraków/turbin jak trzeba Tylko wtedy trzeba zastosowaæ filtry w doprowadzeniu powietrza bo inaczej bêdzie pe³no paprochów lata³o a to nie jest wskazane Co do wyci±gu w pod³odze to dobre rozwi±zanie wg mnie bo jak np masz powiedzmy dolot z góry ¶wie¿ego powietrza, z do³u ci±gnie ca³y odkurz to maluj±c dach a potem schodz±c ni¿ej to nie siada Ci mg³a na ¶wie¿y lakier przez co efekt jest lepszy po wyjechaniu z malowania. Moim marzeniem jest mieæ w³asn± porz±dn± komorê, ale có¿, jak sie nie ma co siê lubi to siê lubi co siê ma Pozdrawiam |
|
|
|
|
 |
skot84
|
Wys³any: 2009-05-19, 22:00
|
0
|
|
|
Posty: 22 Sk±d: Krotoszyn
|
Dodatkowo je¿eli do nadmuchu do³±czymy nagrzewnice (np tak± zyskamy dobry system grzewczy.
| Cytat: | | Co do wyci±gu w pod³odze to dobre rozwi±zanie wg mnie bo jak np masz powiedzmy dolot z góry ¶wie¿ego powietrza, z do³u ci±gnie ca³y odkurz to maluj±c dach a potem schodz±c ni¿ej to nie siada Ci mg³a na ¶wie¿y lakier |
Nie trzeba t³umaczyæ co siê dzieje jak wyci±ga w góre, czasem ciê¿sze paprochy nie uda sie wyci±gn±æ przez górny wyci±g i siadaj± na autku.
Co do mojego "systemu" chcia³bym zastosowaæ podobn± nagrzewnice do wspomnianej wy¿ej oraz taki wentylator do wyci±gu. My¶le ¿e wydajno¶æ nadmuchu i wyci±gu 1700 m3/h powinna wystarczyæ, a mo¿e prêdko¶æ nadmuchu powinna byæ wiêksza?? |
|
|
|
|
 |
|
PROJEKTER
|
Wys³any: 2009-05-20, 11:39
|
+1
|
|
|

Pomóg³: 15 razy Posty: 1836 Sk±d: MODULAR - equipment
|
W³±czaj±c siê do wymiany uwag na temat konstruowanych przez Was rozwi±zañ wtr±cê jedynie, ¿e niektóre przepisy ppo¿ i zasady bezpieczeñstwa u¿ytkowego instalacji elektrycznych i wentylatorów w strefach zagro¿enia wybuchem opracowane zosta³y po to aby chroniæ wasze ¿ycie i z trudem zgromadzony majtek ! Niektóre z tych przepisów stawiaj± zbyt ostre wymogi ale wiêkszo¶æ nale¿a³oby uwzglêdniæ ... tak jako radê tych co nie jeden wybuch ju¿ przeanalizowali i wymy¶lili co wolno, a czego nie !
Oczywi¶cie uznacie ¿e TRUJÊ ale normy NDS ( najwy¿szych dopuszczalnych stê¿eñ substancji chemicznych w ¶rodowisku pracy ) opracowane zosta³y po to aby¶cie w zdrowiu doczekali emerytur ! Zwi±zki chemiczne maj± tendencje do powolnego gromadzenia siê w organizmie i z "cichacza" zabijaj±. To w³a¶nie po to zosta³y opracowane normy NDS aby projektanci wentylacji wiedzieli, ¿e z pomieszczenia w którym pojawia siê rozpylona substancja chemiczna powietrze usun±æ nale¿y 5 razy na godzinê 10 razy albo 28 razy .... czyli dobraæ odpowiedni wentylator z uwzglêdnieniem jego skuteczno¶ci czyli min. ci¶nienia w ka¿dym miejscu pomieszczenia z którego usuwane jest powietrze z zanieczyszczeniami. Ale ... przepraszam nikogo nie chcê pouczaæ. Je¿eli natomiast uznacie ¿e przyda siê trochê wiedzy na temat przepisów, czy sprawdzonych profesjonalnych rozwi±zañ ... proszê pytaæ. Jestem projektantem takich systemów od 1998 roku ! Ze szczególnym uwzglêdnieniem lakierni samochodowych i przemys³owych. |
_________________ Chcesz wiedzieæ wiêcej ? ... projekter@projekter.pl
 |
|
|
|
|
 |
skot84
|
Wys³any: 2009-05-20, 12:03
|
0
|
|
|
Posty: 22 Sk±d: Krotoszyn
|
Twoja pomoc mo¿e byæ nieoceniona dla niektórych z nas
Czy schemat który zaprponowa³em mo¿e siê sprawdziæ??
Mam pomieszczenie 5,5x5,5x3,2 m czyli ma objêt±¶æ oko³o 100m3 , mo¿e mi siê uda rozbudowaæ to mieszczenie do wymiarów 10x5,5x3,2 objeto¶æ oko³o 170m3
Jaki musia³bym mieæ przep³yw powietrza w teori??
Czy te 1700m3/h wystarczy? |
_________________ http://kotbazyl.cba.pl |
|
|
|
|
 |
mebArth
|
Wys³any: 2009-05-20, 12:14
|
0
|
|
|
Pomóg³: 42 razy Posty: 1794 Sk±d: Kraków
|
| Cytat: | | to aby¶cie w zdrowiu doczekali emerytur |
Kolego drogi... Od tego s± UBRANIA, MASKI, KOMBINEZONY, REKAWICZKI BUTY.
Jak ktos nie u¿ywa owych, to wiadomo ze albo rece za 20 lat bedzie mia³ jak staruszek, brak zebów, bêdzie plu³ farb± i k³opoty z oddychaniem. I zdechnie na pylicê.
My byæ nawiew, najlepiej ciep³y + wyciag ¿eby sie nie truæ. Filtry ¿eby nie ciagn±æ smieci i ¿eby sasiadów nie truæ bo zaraz inspekcja przyjedzie i zawiesi k³ódke. |
_________________ Bart
 |
|
|
|
|
 |
LoboLoco
|
Wys³any: 2009-05-20, 12:39
|
0
|
|
|


Pomóg³: 13 razy Posty: 657 Sk±d: Silesia
|
| Co do dmuchawy olejowej to my¶lê ¿e po jakim¶ czasie mia³by¶ problem z zanieczyszczonym olejem powietrzem, my¶lê ¿e PROJEKTER rozwieje wszystkie w±tpliwo¶ci.... jak rozmie¶ciæ wyci±gi po pod³og±, ¿eby na ca³ej powierzchni komory by³ "zaci±g", jakich filtrów urzyæ przy ogrzewaniu dmuchawami olejowymi, jakie¶ wzory na stosunek kubatury pomieszczenia do mocy wyci±gu/nawiewu, jakie¶ pomys³y na ogrzewanie kabiny... napewno przyda siê wiedza nietylko z zakresu przepisów, ale te¿ strony praktycznej.... |
_________________ >>> Airbrush'Lab <<< |
|
|
|
|
 |
|
PROJEKTER
|
Wys³any: 2009-05-20, 13:36
|
0
|
|
|

Pomóg³: 15 razy Posty: 1836 Sk±d: MODULAR - equipment
|
Popieram to o maskach i ubraniach zalecam tak¿e cienkie rêkawiczki chirurgiczne tym którym to nie przeszkadza. Strze¿cie siê materia³ów wodorozcieñczalnych na no¶niku alkoholowym !!! Jako produkt w stanie p³ynnym s± gro¼niejsze dla zdrowia ni¿ ¶mierdz±ce lakiery konwencjonalne.
Co do filtrów ! nie ma mo¿liwo¶ci wyeliminowania emisji LZO do powietrza wiêc i ochrony s±siadów jakimi¶ filtrami ! emisja z kabiny jest taka sama jak z gara¿u gdzie u¿ywa siê takiego samego lakieru. Wyj±tkiem s± instalacje posiadaj±ce aktywowany granulat wêglowy ale on jak jest nowy i ch³onny to zatrzymuje i max 38 %. reszta do powietrza.
[ Dodano: 2009-05-20, 13:43 ]
skot 84 ! ilo¶æ wymian powietrza w pomieszczeniu rozpatrywana byæ mo¿e albo pod wzglêdem bezpieczeñstwa, albo pod wzglêdem wymogów technologicznych.
Je¿eli w materia³ach które u¿ywasz nie ma jakiego¶ bardzo truj±cego emiterora np Toulenu to zapewne ok 10 wym / h wystarczy.... ale ilo¶æ wymian oblicza siê w stosunku do ilo¶ci danej substancji chemicznej w powietrzu. To tylko takie szybki wyja¶niê i lu¼na uwaga ¿e wystarczy !
Drugi czynnik to wymogi technologiczne, prosta kabina ma ok 21 - 23 wymian powietrza na godzinê a i tak w niektórych z nich nie udaje siê zachowaæ odpowiedniej prêdko¶ci opadu powietrza z zanieczyszczeniami ¿eby te nie unosi³y siê w powietrzy i nie osiada³y na elementach
[ Dodano: 2009-05-20, 13:46 ]
prêdko¶æ opadu powietrza w kabinie lakierniczej wynosiæ musi 0,3 na sek.
Od chwili gdy jeste¶my w Unii to nie jest wskazówka tylko formalny wymóg wynikaj±cy z normy i dyrektywy maszynowej ... a ta obowi±zuje ka¿de urz±dzenie eksploatowane z zjednoczonej europie. Dostawca i producent potwierdza takie parametry Deklaracj± zgodno¶ci z dyrektyw± WE i znakiem CE
[ Dodano: 2009-05-20, 13:56 ]
co do nagrzewnic ! ogrzewanie otwartym p³omieniem powietrza kierowanego do strefy w której wyst±piæ mo¿e mieszanina palnej substancji lotnej z powietrzem jest zabronione przepisami i .... wybaczcie g³upie i nie odpowiedzialne !!!
Pomijam ju¿ poruszony fakt przez Loboloco, ¿e nagrzewnica olejowa z otwarta komor± spalania na pewno po kliku minutach pracy spowodowa³a by powstawanie na pow³oce lakieru oczek kraterów, lub jak tam ka¿dy je nazywa bo definicja akademicka ... fizyko chemiczn± reakcj± substancji b³onotwórczej emalii na obecno¶æ silikonu.
Kabina lakiernicza ma zamkniêt± komorê spalania zwan± wymiennikiem ciep³a
Chyba ¿e to najnowocze¶niejsze rozwi±zanie ... uwaga ! innowacyjne- ( has³o do wniosku o kasê z Unii ) i jest palnik gazowy z bezpo¶rednim p³omieniem bez wymiennika ciep³a. Faktycznie absolutna rewelacja niewielkie zu¿ycie gazu, bark bezw³adno¶ci( tzn. kabina w 2 minuty osi±ga 60 st C ) i brak komina spalin.
[ Dodano: 2009-05-20, 14:06 ]
Jak kto¶ jest zainteresowany konkretnym problemem to proszê o e-mail. S± obszerne materia³y na niektóre tematy i strony www dostawców i producentów ( krajowych jest 12 ) którzy oprócz oferty handlowej umieszczaj± opisy techniczne rozwi±zañ wentylacji w lakierniach. Zawsze to daje szerszy pogl±d na sprawê. |
_________________ Chcesz wiedzieæ wiêcej ? ... projekter@projekter.pl
 |
|
|
|
|
 |
bachus
|
Wys³any: 2009-05-20, 23:05
|
0
|
|
|
Pomóg³: 1 raz Posty: 127
|
mam do sprzedania nagrzewnice REMKO 46kW. w 10 minut rozgrzewa na max obrotach pomieszczenie od 0 do 53-55st.C
przy otwartej bramie w mróz by³o 22
obroty mozna regulowac. tzn temp bo si³a nawiewu bez zmian |
_________________ CUSTOM PAINT is better than ...
... just kidding :P |
|
|
|
|
 |
|
PROJEKTER
|
Wys³any: 2009-05-20, 23:58
|
0
|
|
|

Pomóg³: 15 razy Posty: 1836 Sk±d: MODULAR - equipment
|
Nie gniewaj siê ale ¿eby rozgrzaæ pomieszczenie 7 x 4 x 3 m ( taka standardowa kabina lakiernicza ) do temp 50 - 60 st C w 10 minut to moc wymiennika ciep³a musi wynosiæ ok. ... 240 kW palnik powinien mieæ dwa stopnie pracy i to startuj±c z temp minimum 12 - 16 st C .... i jeszcze konieczne jest zachowanie znacznej prêdko¶ci przep³ywu powietrza tak z 0,18 m /sek.
ale kurde sorry .... co ja tam siê znam.... jest do sprzedania i tak zajebi¶cie dzia³a to na pewno kto¶ j± kupi. Przecie¿ nie musi od razu zastêpowaæ kabino suszarki lakierniczej. |
_________________ Chcesz wiedzieæ wiêcej ? ... projekter@projekter.pl
 |
|
|
|
|
 |
|
dosia
|
Wys³any: 2010-01-05, 19:17
|
0
|
|
|
Posty: 4
|
witam, jestem pocz±tkuj±cym lakiernikiem i dzis znalaz³em to forum. Ja w swoim stanowisku lakierniczym o tej porze grzeje s³oneczkiem na butli gazowej wiec chociarz problem grzania mam rozwi±zany. Co do zbierania sie py³u nie stosuje powszechnych metod wyci±gu co uwazam za archaiczny sposób brniêcia w koszty. Mój sposób polega uchylaniu okna gdy juz naprawde bêd± "ciêzkie" warunki w mojej lakiernii. Chodz teraz s± mrozy to okna nie uchylam tak czêsto i temperatura w moim stanowisku wynosi ok 12 st C. Uwazam ze mozna robic dobrze t± robotê i koszt 150 z³ za element wystarczy. pozdrawiam i mam nadzieje ze da³em do myslenia. |
|
|
|
|
 |
|
PROJEKTER
|
Wys³any: 2010-01-05, 20:39
|
0
|
|
|

Pomóg³: 15 razy Posty: 1836 Sk±d: MODULAR - equipment
|
Czê¶æ a ja jestem starym, zgrzybia³ym, lakiernikiem i przyznam ... ¿e to oryginalny punkt widzenia ! ... ale to nic. Poczytasz i pogrzebiesz sobie na Forum ... zm±drzejesz .... wtedy poprosisz o paradê jak rozbiæ wentylacjê przy niewielkich nak³adach ... niewielki przejd± w ¶rednie, a ¶rednie w znacz±ce ... wtedy podniesiesz ceny do 300 ... zapytasz co i jak dalej zrobiæ ¿eby by³o legalnie skoro ju¿ wyda³e¶ tyle kasy... wtedy chêtnie ci pomogê .... i có¿ witam w klubie !
Druga droga jest taka ... przy malowaniu wiêkszej ilo¶ci elementów uchylaj tak¿e bramê ... a przy ca³ym samochodzie wykuj sobie drugie okno ... i nie zapomnij podkrêciæ s³oneczko
pozdrawiam i mam nadzieje ¿e da³em do my¶lenia |
_________________ Chcesz wiedzieæ wiêcej ? ... projekter@projekter.pl
 |
|
|
|
|
 |
|
dosia
|
Wys³any: 2010-01-05, 21:31
|
-1
|
|
|
Posty: 4
|
| PROJEKTER napisa³/a: | | nadzieje ¿e da³em do my¶lenia |
Ja tam wiem swoje, pozdro. |
|
|
|
|
 |
Lackdoctor
|
Wys³any: 2010-01-05, 21:46
|
0
|
|
|
Pomóg³: 40 razy Posty: 3753
|
| dosia napisa³/a: | witam, jestem pocz±tkuj±cym lakiernikiem i dzis znalaz³em to forum. Ja w swoim stanowisku lakierniczym o tej porze grzeje s³oneczkiem na butli gazowej wiec chociarz problem grzania mam rozwi±zany. Co do zbierania sie py³u nie stosuje powszechnych metod wyci±gu co uwazam za archaiczny sposób brniêcia w koszty. Mój sposób polega uchylaniu okna gdy juz naprawde bêd± "ciêzkie" warunki w mojej lakiernii. Chodz teraz s± mrozy to okna nie uchylam tak czêsto i temperatura w moim stanowisku wynosi ok 12 st C. Uwazam ze mozna robic dobrze t± robotê i koszt 150 z³ za element wystarczy. pozdrawiam i mam nadzieje ze da³em do myslenia. |
Pokaz swoj± robote w jakiejs ³adnej rozdzia³ce i najlepiej kilka fotek, ocenimy czy mozna za 150 zl zrobic dobrze t± robote - jak napisa³es.
Interesuje mnie przede wszystkim element przed polerka , felce i maska.
Pochwal sie a i my cie pochwalimy. Chyba. |
_________________ Strona mojego znajomego w Belgii... mówi po naszemu. Bardzo fajne furki, bardzo ró¿ne ceny, nowe okazje praktycznie codziennie.
http://home.mobile.de/AUTOS-PAGNAER#ses |
|
|
|
|
 |
skot84
|
Wys³any: 2010-01-05, 21:48
|
0
|
|
|
Posty: 22 Sk±d: Krotoszyn
|
Witam. Od 2 misiêcy w moim pomieszczeniu zamontowa³em dosyæ sporawy wentylator i powiem ci ¿e nie da siê tego porównaæ z "wietrzeniem" przez otwarte okno to niebo a ziemia hehe, niestety mamy zimê wiec jestem zmuszony otwieraæ okno by ca³ego ciep³a mi wentylator nie wyci±gno³.
150 z³ za element wystarczy pod warunkiem ¿e masz to nielegalnie, bo jesli chodzi o legany interes to nie ma szans przy takich cenach, no chyba ¿e robisz hurtowo...
Pozmienia³y mi sie plany i powiêkszy³y perspektywy na przysz³o¶æ.
Planuje wybudowaæ co¶ takiego:
Jedna czê¶æ strefa przygotowawcza druga strefa lakierowania.
Dwa pomieszczenia pierwsze do umieszczenia elementu wyci±gów oraz malego pieca CO oraz nagrzewnicy...
Drugie miejsce na narzêdzia i materia³y.
Mam dylemat z czego to postawiæ , mianowicie zastanawiam sie nad:
mam ceg³e z rozbiórki w dobrym stanie która mi starczy na 80% budynku
Zakupiæ i postawiæ konstrukcje z wykorzystaniem p³yt warstwowych
Co by¶cie radzili?? najwa¿nieszy oczywi¶cie uklad wewn±trz budynku..
PROJEKTER jaki by³by koszt takiego budynku wed³ug twojego systemu modulowego??
Pozdrawiam
ps z ciekawo¶ci dosia z jakiego regionu polski jeste¶? |
_________________ http://kotbazyl.cba.pl |
|
|
|
|
 |
Lackdoctor
|
Wys³any: 2010-01-05, 21:56
|
0
|
|
|
Pomóg³: 40 razy Posty: 3753
|
| PROJEKTER napisa³/a: | | zm±drzejesz .... wtedy poprosisz o paradê jak rozbiæ wentylacjê przy niewielkich nak³adach ... niewielki przejd± w ¶rednie, a ¶rednie w znacz±ce ... wtedy podniesiesz ceny do 300 |
Projekter powiem ci ze raczej nie bedzie twoim klientem, nie ta po³ka cenowa.
Nie obrazaj sie czasami bo nawet ja nie bede Twoim klientem bo w moim przypadku by³by to przerost formy nad trescia.
Rozumiem Twoj punkt widzenia.
Zrozum i moj. |
_________________ Strona mojego znajomego w Belgii... mówi po naszemu. Bardzo fajne furki, bardzo ró¿ne ceny, nowe okazje praktycznie codziennie.
http://home.mobile.de/AUTOS-PAGNAER#ses |
|
|
|
|
 |
|
PROJEKTER
|
Wys³any: 2010-01-05, 23:50
|
0
|
|
|

Pomóg³: 15 razy Posty: 1836 Sk±d: MODULAR - equipment
|
| skot84 napisa³/a: | Pozmienia³y mi sie plany i powiêkszy³y perspektywy na przysz³o¶æ.
Planuje wybudowaæ co¶ takiego: |
podobn± koncepcj± .... w 2004 roku zrobi³em niez³e zamieszanie na sympozjum dealerów ( powiedzmy jednego koreañskiego koncernu ). Podobn± bo w mojej w pomieszczeniu od frontu by³a mieszalnia razem ze sto³em dla lakierników. Przez t± mieszalniê przechodzi³o siê do drugiego pomieszczenia. W pozosta³ej czê¶ci sta³ jeden zespó³ wentylacyjno grzewczy od kabiny lakierniczej razem ze zbiornikiem na olej opa³owy i sprê¿ark±. Ten zespó³ obs³ugiwa³ oba stanowiska - lewe i prawe ( to specjalnie profilowany fundament z kanalizacj± i dodatkowy system przepustnic sterowany tak ¿e albo jedno dzia³a na full albo oba po 50 %). Stanowiska zosta³y w tej koncepcji skanalizowane. W efekcie mo¿na by³o na ka¿dym z nich przygotowaæ samochód do lakierowania, polakierowaæ go, wysuszyæ i wypolerowaæ ... bez przestawiania !!! W dalszych pracach do³o¿one zosta³y bramy z ty³u i lakiernia by³a przelotowa a przednie zamienione na takie od kabiny lakierniczej ! ... a pó¼niej pomiêdzy wjazdami z przodu do³o¿y³em kawa³ek dwupoziomowego biura z socjalem ze schodami z przodu ( by³o ta tak¿e nad t± mieszalni± ).
Nigdy nie zrealizowali¶my takiego projektu bo ka¿dy narzeka³ ¿e ... bez kabiny ... i za ma³e .... i siê nie uda³o - ale to by³ 2005 rok i ka¿dy w tym koncernie my¶la³ kategoriami wielkiego serwisu. Mo¿e tobie siê uda zrobiæ wszystko w jednym ... to nie bêdziesz musia³ wogóle kupowaæ kabiny !
[ Dodano: 2010-01-05, 23:56 ]
| dosia napisa³/a: | | PROJEKTER napisa³/a: | | nadzieje ¿e da³em do my¶lenia |
Ja tam wiem swoje, pozdro. |
@dosia Takich co przy drugiej wypowiedzi na forum maj± mnie w du..ie to lubiê najbardziej
ale ? ... wiesz ¿e zmienisz zdanie ? .... czy .... jeszcze tego nie wiesz ? |
_________________ Chcesz wiedzieæ wiêcej ? ... projekter@projekter.pl
 |
|
|
|
|
 |
skot84
|
Wys³any: 2010-01-06, 00:08
|
0
|
|
|
Posty: 22 Sk±d: Krotoszyn
|
PROJEKTER a masz mo¿e jakie¶ szkice tego projektu??
bo to co przedstawi³em to zwyk³y gara¿ ktory sobie zaplanowa³em przerobiæ narazie plany przeróbek tylko w g³owie heh
G³ownym moim celem jest taki budynek który w pe³ni zastapi kabine.
Szeroko¶æ obu czê¶ci planowa³em powiêkszyæ do 5 m d³ugo¶æ 8m powinna byc wystarczaj±ca..
Nie ma to byæ wielki serwis |
_________________ http://kotbazyl.cba.pl |
|
|
|
|
 |
|
PROJEKTER
|
Wys³any: 2010-01-06, 00:33
|
0
|
|
|

Pomóg³: 15 razy Posty: 1836 Sk±d: MODULAR - equipment
|
| NIESTETY NIE ! akurat ta koncepcja by³a wykonana jako animacja 3D specjalnie na sympozjum ... a potem poprawiona, a te zmiany wprowadzili¶my na Targi Poznañskie te¿ w animacji. Nigdy nie powsta³a jako projekt,a nawet jego szkic ! ... ale my¶lê ¿e do¶æ czytelnie to opisa³em szczególnie ¿e prawie prawie twoja koncepcja tak w³a¶nie wygl±da ! |
_________________ Chcesz wiedzieæ wiêcej ? ... projekter@projekter.pl
 |
|
|
|
|
 |
skot84
|
Wys³any: 2010-01-06, 01:02
|
0
|
|
|
Posty: 22 Sk±d: Krotoszyn
|
Po przeanalizowaniu twego posta urodzi³a mi sie taka koncepcja...
W przysz³o¶ci w pomieszczeniu nr 5 wmontowaæ system wyci±gu...
sorrki za jako¶æ szkicu
Czy tak by mog³o by pozostaæ?? czy jakie¶ zmiany by¶ proponowa³??
A nie zazstanawia³e¶ sie kiedy¶ nad wprowadzeniem takiego projektu w ¿ycie?? taka ma³a dwustanowiskowa lakiernia przy odpowiednio zbalansowanej cenie by pewnie niejednego zainteresowa³a.
miniaturarzut.jpg
|
 |
| Plik ¶ci±gniêto 485 raz(y) 34.29 KB |
|
_________________ http://kotbazyl.cba.pl |
|
|
|
|
 |
|
PROJEKTER
|
Wys³any: 2010-01-06, 11:05
|
0
|
|
|

Pomóg³: 15 razy Posty: 1836 Sk±d: MODULAR - equipment
|
hmmm ! my¶la³em my¶la³em i wymy¶li³em modularny-warsztat. W tym systemie zawsze mo¿na warsztat rozbudowaæ bez zmian instalacji technicznych i konstrukcji. W obiekcie takim jak np. na zdjêciu powy¿ej nowe stanowiska nie powstan± ju¿ tak ³atwo ...
Je¿eli jednak podoba ci siê architektura tego obiektu ... to wewn±trz sugerujê aby¶ tak¿e wykona³ kana³y wentylacyjne w drugim stanowisku i bêdziesz mia³ dwie kabiny !
System wentylacyjno grzewczy kabiny lakierniczej ogrzeje ci oba pomieszczenia i pozwoli na lakierowanie w obu naraz ! Jedynie przy projekcie konstrukcji fundamentów p³yt w fosach bêdziesz potrzebowaæ pomocy fachowca bo musz± one zostaæ sprofilowane pod k±tem 30 st. ¿eby mo¿na by³o ustabilizowaæ ci¶nienie w pomieszczeniu i ¿eby zasys mia³ tak± sam± si³ê w ka¿dym punkcie przy posadzce. To wa¿ne ¿eby¶ nie mia³ problemów przy lakierowaniu po obu stronach samochodu. Druga pomoc fachowca to uk³ad przepustnic i automatyki nawiewu powietrza i jego wyci±gu ... ale to powinna ci zrobiæ ka¿da firma która produkuje w Polsce kabiny ... lub projektant wentylacji z elektrykiem je¿eli maj± o tym trochê pojêcia ... lub gdy im wyja¶nisz o co chodzi ! |
_________________ Chcesz wiedzieæ wiêcej ? ... projekter@projekter.pl
 |
|
|
|
|
 |
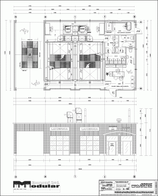
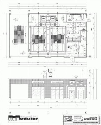
MODULAR
|
Wys³any: 2010-01-06, 11:44
|
0
|
|
|
PROJEKTER

Posty: 14
|
MODULAR INTEGRA - dwa stanowiska lakiernicze z zapleczem socjalnym.
System wentylacji i ogrzewania zastêpuje kabinê lakiernicz±.
TERAZ TAK : tu mo¿na pobraæ katalog pdf - wszystkich modu³ów systemu modularny warsztat : http://www.modularny-wars...ly-systemu.html pod koniec katalogu jest opis tego modu³u poni¿ej ( INTEGRA ) tj. moc silników, zdolno¶æ przesy³owa turbin, wymiary itp.
Natomiast przyk³ady projektów ró¿nych obiektów s± tu :
http://www.modularny-wars...ormalnosci.html to te¿ katalog pdf i trzeba go sobie ¶ci±gn±æ. W tej czê¶ci katalogu jest tak¿e tabela ze sk³adnikami projektu i zakresem wymaganych formalno¶ci.
A jak to wygl±da i jak siê to sk³ada do kupy, oraz wady i zalety systemu s± tu :
http://www.modularny-wars...y-warsztat.html - to tak¿e katalog pdf.
[ Dodano: 2010-01-06, 15:54 ]
Tak to wygl±da :
LAKIERNIA 2 INTEGRA + MYJNIA.gif
|
 |
| Plik ¶ci±gniêto 1398 raz(y) 119.87 KB |
LAKIERNIA 2 INTEGRA + MYJNIA.gif
|
 |
| Plik ¶ci±gniêto 1645 raz(y) 119.87 KB |
|
_________________ PLANUJESZ BUDOWÊ WARSZTATU - ZOBACZ - http://www.modularny-warsztat.pl/
 |
|
|
|
|
 |
|
No-limit
|
Wys³any: 2010-01-07, 14:19
|
0
|
|
|

Pomóg³: 34 razy Posty: 1179
|
| dosia napisa³/a: | witam, jestem pocz±tkuj±cym lakiernikiem i dzis znalaz³em to forum. Ja w swoim stanowisku lakierniczym o tej porze grzeje s³oneczkiem na butli gazowej wiec chociarz problem grzania mam rozwi±zany. Co do zbierania sie py³u nie stosuje powszechnych metod wyci±gu co uwazam za archaiczny sposób brniêcia w koszty. Mój sposób polega uchylaniu okna gdy juz naprawde bêd± "ciêzkie" warunki w mojej lakiernii. Chodz teraz s± mrozy to okna nie uchylam tak czêsto i temperatura w moim stanowisku wynosi ok 12 st C. Uwazam ze mozna robic dobrze t± robotê i koszt 150 z³ za element wystarczy. pozdrawiam i mam nadzieje ze da³em do myslenia. |
Có¿ powiedzieæ na TAKIE argumenty? |
|
|
|
|
 |
|
ZIEMBA
|
Wys³any: 2010-01-07, 18:51
|
0
|
|
|
Pomóg³: 5 razy Posty: 380
|
| dosia napisa³/a: | witam, jestem pocz±tkuj±cym lakiernikiem i dzis znalaz³em to forum. Ja w swoim stanowisku lakierniczym o tej porze grzeje s³oneczkiem na butli gazowej wiec chociarz problem grzania mam rozwi±zany. Co do zbierania sie py³u nie stosuje powszechnych metod wyci±gu co uwazam za archaiczny sposób brniêcia w koszty. Mój sposób polega uchylaniu okna gdy juz naprawde bêd± "ciêzkie" warunki w mojej lakiernii. Chodz teraz s± mrozy to okna nie uchylam tak czêsto i temperatura w moim stanowisku wynosi ok 12 st C. Uwazam ze mozna robic dobrze t± robotê i koszt 150 z³ za element wystarczy. pozdrawiam i mam nadzieje ze da³em do myslenia. |
Dla mnie to mozesz i za 50z³ malowac |
|
|
|
|
 |
|
PROJEKTER
|
Wys³any: 2010-01-07, 19:13
|
0
|
|
|

Pomóg³: 15 razy Posty: 1836 Sk±d: MODULAR - equipment
|
przemo ! ratunku ! Wgrywam ten projekt ju¿ trzeci raz i ci±gle znika ! Mo¿esz jako¶ pomóc ?
LAKIERNIA 2 INTEGRA + MYJNIA.gif
|
 |
| Plik ¶ci±gniêto 792 raz(y) 119.87 KB |
|
_________________ Chcesz wiedzieæ wiêcej ? ... projekter@projekter.pl
 |
|
|
|
|
 |
|
ZIEMBA
|
Wys³any: 2010-01-07, 19:17
|
0
|
|
|
Pomóg³: 5 razy Posty: 380
|
| U mnie projekt siê wy¶wietla. |
|
|
|
|
 |
przemo1972
|
Wys³any: 2010-01-07, 19:22
|
0
|
|
|

Pomóg³: 11 razy Posty: 551 Sk±d: SC
|
U mnie tez... |
|
|
|
|
 |
|
PROJEKTER
|
Wys³any: 2010-01-07, 20:27
|
0
|
|
|

Pomóg³: 15 razy Posty: 1836 Sk±d: MODULAR - equipment
|
| Kurde mo¿e tylko u mnie zanika ! Dziêki i przepraszam za panikê ! |
_________________ Chcesz wiedzieæ wiêcej ? ... projekter@projekter.pl
 |
|
|
|
|
 |
skot84
|
Wys³any: 2010-01-07, 22:41
|
0
|
|
|
Posty: 22 Sk±d: Krotoszyn
|
PROJEKTER u mnie równie¿ siê wy¶wietla..
Jestem pod wra¿eniem projektu, mo¿e kiedy¶ gdy fundusze i rozwój przysz³ej firmy pozwol± to prawdobodobnie bym bra³ pod uwage twoje projekty.
Mówi³e¶ o skosie 30° wyci±gu móg³by¶ to jako¶ zobrazowaæ jak by to nie by³ problem, wydawa³o mi siê ¿e gdzie¶ u Ciebie na stronie mi to mig³o ale nie moge tego drugi raz znale¶æ
| dosia napisa³/a: | witam, jestem pocz±tkuj±cym lakiernikiem i dzis znalaz³em to forum. Ja w swoim stanowisku lakierniczym o tej porze grzeje s³oneczkiem na butli gazowej wiec chociarz problem grzania mam rozwi±zany. Co do zbierania sie py³u nie stosuje powszechnych metod wyci±gu co uwazam za archaiczny sposób brniêcia w koszty. Mój sposób polega uchylaniu okna gdy juz naprawde bêd± "ciêzkie" warunki w mojej lakiernii. Chodz teraz s± mrozy to okna nie uchylam tak czêsto i temperatura w moim stanowisku wynosi ok 12 st C. Uwazam ze mozna robic dobrze t± robotê i koszt 150 z³ za element wystarczy. pozdrawiam i mam nadzieje ze da³em do myslenia. |
Stara³em siê nie komentowaæ no ale....
Dosia po twoim poscie wnioskuje i to z wielk± nadzdziej± ¿e jeste¶ bardzo pocz±tkuj±cym lakiernikiem.
Skoro znalaz³e¶ to forum i napisa³e¶ posta o takiej a nie innej tre¶ci, to my¶le ¿e tu bedziesz stawiaæ swoje pierwsze prawdziwe kroki w lakiernictwie, bo jak narazie to jeste¶ na etapie przed raczkowaniem. W koñcu ka¿dy z nas jako¶æ zaczyna³... Sam pamiêtam pierwsze "lakierowanie" starej skody, dobrze ¿e by³a przeznaczona na z³omowanie ahh...
| No-limit napisa³/a: | Có¿ powiedzieæ na TAKIE argumenty? |
Wyt³umaczyæ ¿e nie têdy droga..
No chyba ¿e delikwent jest kompletnym ignorantem, chamem i ma porady innych gdzie¶... to w takim wypadku takiej osobie dziêkujemy...
Ja uwa¿am ¿e ka¿dy zas³uguje na szanse nawet tak± malutk±...
Dosia daj jakie¶ dowody na potwierdzenie swoich s³ów, np fotki elementów po malowaniu przed polerk±. Bo jak narazie to puste slowa...
Pozdrawiam |
_________________ http://kotbazyl.cba.pl |
|
|
|
|
 |
|
crystal
|
Wys³any: 2010-01-08, 01:55
|
0
|
|
|

Pomóg³: 9 razy Posty: 611
|
Panowie dobrze kombinujecie z tymi warsztatami
napiszcie z grubsza o kosztach (budynek bez wyposa¿enia) |
|
|
|
|
 |
MODULAR
|
Wys³any: 2010-01-08, 10:40
|
0
|
|
|
PROJEKTER

Posty: 14
|
Koszt budowy tego co powy¿ej z kompletnym wyposa¿eniem i wszystkimi formalno¶ciami oraz wnioskiem o dotacjê z UE 376 000 z³ netto ( nie obejmuje prac ziemnych i przy³±czy - bo nie znam terenu , oraz mebli i komputerów w biurze - reszta w cenie razem z dwoma pistoletami SATA, przewodami i wieszakami do pistoletów ). W tym zestaw Integra 98 400 z³ netto ze zbiornikiem na olej i trzema promiennikami podczerwieni na prowadnicach podpór konstrukcyjnych ( jeden na ¶rodku + dwa po bokach )
....ale najdro¿ej wychodz± takie ma³e obiekty bo ju¿ taki z dwoma dodatkowymi stanowiskami np . mechanicznym przy takim samym socjalu to koszt 448 000 z³ ... a dwa razy wiêkszy i z podno¶nikami dwu kolumnowymi !
Najtaniej za metr / kw wychodz± te najwiêksze.
... i jedna wa¿na uwaga ! ze wzglêdu na ró¿ne klasyfikacje obci±¿enia ¶niegowego w niektórych miejscach Polski musimy zmieniæ konstrukcjê dachu na dwuspadow± co trochê podno¶i koszty obiektu - niestety tam gdzie miejscowy plan zagospodarowania narzuca te¿ taki uk³ad dachu - koszty rosn± ! ok 10 % - 15 % |
_________________ PLANUJESZ BUDOWÊ WARSZTATU - ZOBACZ - http://www.modularny-warsztat.pl/
 |
|
|
|
|
 |
|
lakar
|
Wys³any: 2010-08-26, 18:49
|
0
|
|
|
Pomóg³: 2 razy Posty: 51
|
| ja mam pomieszczenie 8metrow na szesc tam przygotowuje robie blache i lakieruje.na podlodze plytki na scianach plyta karton gips polakierowana biala farba do malowania pasow na jezdni na suficie folia termoizolacyjan odbijajaca cieplo.w suficie zamontowany wentylator o sporej mocy ktory tloczy powietrze do srodka a na dole w scianach dwa male wentylatory o mniejszej mocy lacznie niz ten w suficie.po wlaczeniu w pomieszczeniu robi sie nadcicnienie tak ze ciezko domknac drzwi od garazu.przed lakierowaniem zmywam wszystko woda myjka cisnieniaowqa oswietlenie i instalacja elektryczna jest hrmetyczna zalaczam wentylatory i lakieuje.nie pamietam juz kiedy usuwalem jakiekolwiek pylki z lakiey poprostu ich tam nie ma.nadcisnienie jest bardzo wazne caly syf wumiata z pomieszczenia.polecam dobra i tania metoda .napewno tansza niz kabina,i w zrobieniu i w eksploatacji. |
|
|
|
|
 |
|
pio_len
|
Wys³any: 2010-08-26, 19:07
|
0
|
|
|
Posty: 88
|
lakar wrzuæ fotki tej cud komory a dok³adnie instalacji nawiewowej kana³ów wentylatorów itd .
w jaki sposób masz to pomieszczenie ogrzewane . |
|
|
|
|
 |
|
samurajek
|
Wys³any: 2011-04-10, 23:25
|
0
|
|
|
Pomóg³: 2 razy Posty: 68 Sk±d: Wroc³aw
|
Witam
Podpinam siê do pro¶by o foty
pozdro |
|
|
|
|